
Крупноразмерные плиты используют как покрытие взлетных полос. Благодаря прочностным характеристикам их также применяют для обустройства временных стройплощадок, автомобильных дорог и автостоянок.
А в этой статье мы расскажем о видах гладких аэродромных плит или, как их принято называть, ПАГ. Остановимся на производстве, типах конструкции, формах и размерах. Также вы узнаете преимущества, правила хранения и транспортировки аэродромных плит.
Что такое ПАГ
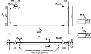
Крупноразмерные изделия, плиты аэродромные, которые производят из прочных и морозостойких марок бетона называются плиты аэродромные гладкие. Такие ж/б изделия выдерживают большие нагрузки на протяжении всего срока эксплуатации без потери первоначальных характеристик.
ГОСТ и ТУ — в чем отличия и какие лучше
Существует два вида аэродромных ж/б-плит, которые отличаются требованиями:
- ГОСТ — это стандарт, по которому регламентируется производство. В нем четко прописаны требования к сырью, условия изготовления, хранения, маркировки и правила транспортировки.
- ТУ — это технические условия, самостоятельно составленные производителем плит. ТУ применимо в случаях, когда ГОСТ не отражает полную информацию о стройматериалах или вообще отсутствует.
Основные отличия ТУ и ГОСТ:
- Владелец ГОСТ — государство, а ТУ принадлежат коммерческим компаниям, которые могут продавать и передавать права на использование технических условий.
- Созданный государством стандарт намного строже, чем ТУ. Главное в нем качество и безопасность, а в ТУ — экономическая выгода. Нормативы ГОСТ, в отличие от ТУ, обязаны соблюдать все.
- Госстандарт чаще создают под определенный товар, с конкретными требованиями на всех этапах от используемого сырья до хранения, отгрузки и перевозки. В ТУ таким нюансам практически не уделяют внимание.
Сказать однозначно, что лучше, сложно, потому что в силу большой конкуренции некоторые компании закладывают в технические условия очень высокие требования. Но ГОСТ дает больше гарантий, хотя, если речь идет о производителе с хорошей репутацией в своем сегменте рынка, то продукция по ТУ также будет высокого качества.
Как производят аэродромные плиты
Процесс долгий, трудоемкий и проходит в несколько этапов:
- Металлическую форму смазывают специальным составом, чтобы избежать прилипания.
- Формируют каркас из прутьев и натягивают его при помощи гидравлических домкратов.
- Форму заливают бетоном и помещают на вибростол.




